欢迎访问常熟市沙家浜镇华宏工程材料厂建筑变形缝,建筑伸缩缝,变形缝厂家,伸缩缝厂家 联系电话:177-5113-8061
专业提供建筑变形缝,建筑伸缩缝,变形缝厂家,伸缩缝厂家
变形缝销售热线:
177-5113-8061
网站首页
Home
关于我们
About us
产品展示
Product
新闻中心
News
案例展示
Case
生产设备
Equ
标准图集
Atlas
联系我们
Contact us
  产品类别
 屋面检修口
 外墙变形缝
 内墙变形缝
 地坪变形缝
 屋面变形缝
 楼梯防滑条
 石材分割缝
 防尘地毯
 变形缝附件
 踢脚线
 铠装缝
常熟市沙家浜镇华宏工程材料厂
地址:江苏省常熟市沙家浜镇中环路1号8幢
联系人:勾经理  
手机:177-5113-8061  
邮编:215500
 
国标图集当前位置:首页 > 国标图集
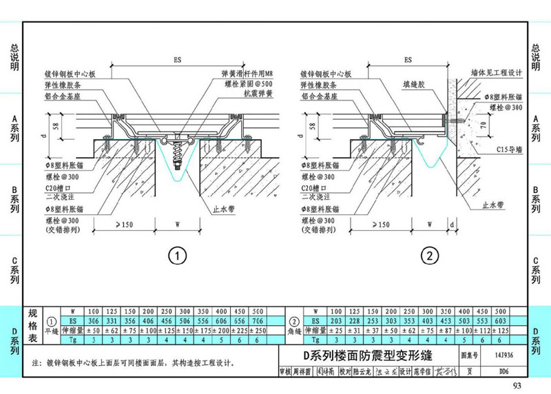
14J936变形缝建筑构造
浏览:158264
高速下载:14J936变形缝建筑构造
详细信息:1052
1  2  3  4  5  6  7  8  9  10  11  12  13  14  15  16  17  18  19  20  21  22  23  24  25  26  27  28  29  30  31  32  33  34  35  36  37  38  39  40  41  42  43  44  45  46  47  48  49  50  51  52  53  54  55  56  57  58  59  60  61  62  63  64  65  66  67  68  69  70  71  72  73  74  75  76  77  78  79  80  81  82  83  84  85  86  87  88  89  90  91  92  93  94  95  96  97  98  99  100  101  102 
【返回】
上一页:无
下一页:无
网站首页 关于我们 产品展示 新闻中心 案例展示 生产设备 标准图集 联系我们
版权所有:常熟市沙家浜镇华宏工程材料厂  All rights reserved  苏ICP备2022037533号-1
地址:江苏省常熟市沙家浜镇中环路1号8幢   联系人:勾经理   手机:177-5113-8061     网址:www.cshhbxf.cn